Package Details

Design:
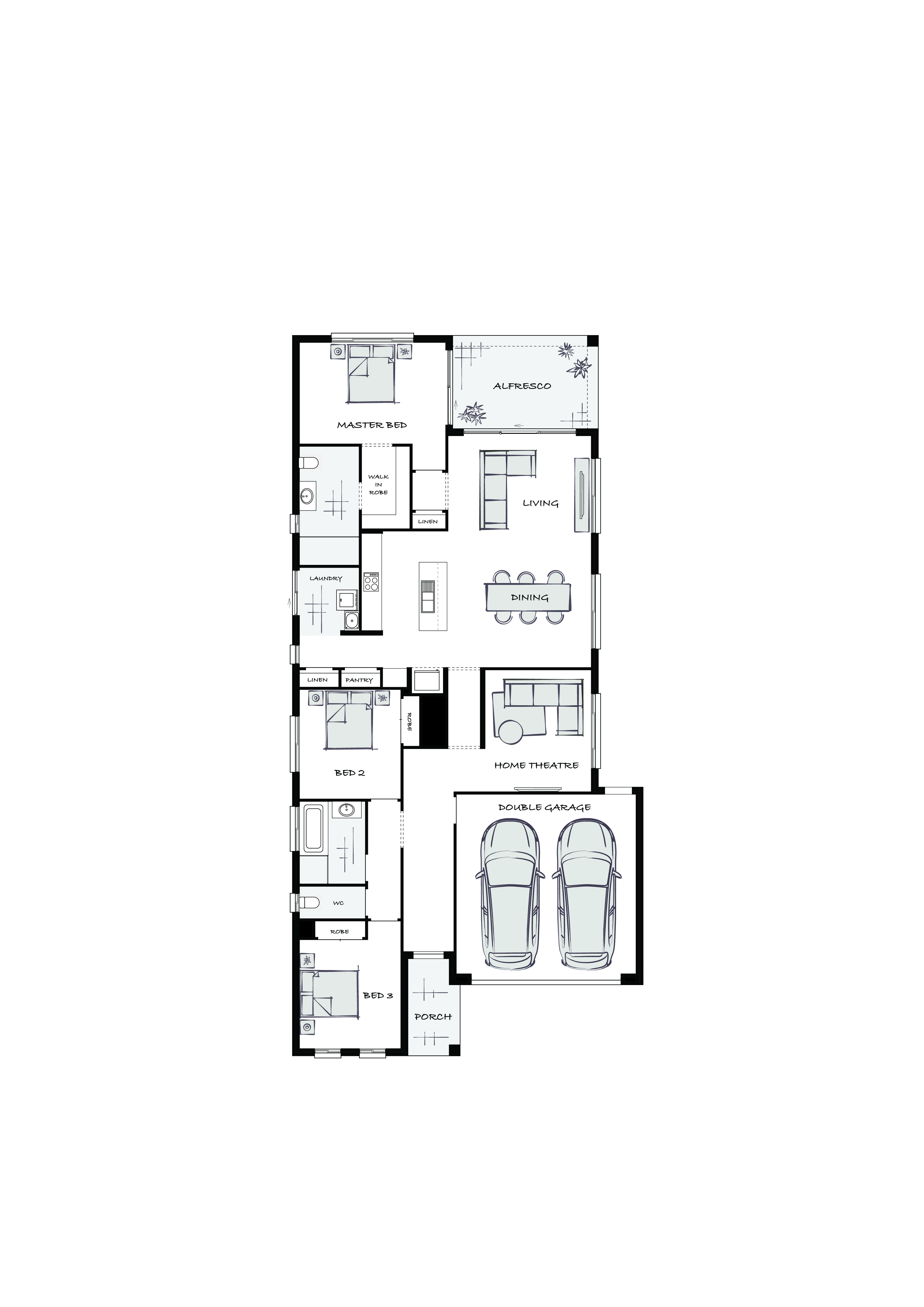
Auldana One
Facade:
Scandinavian
House size:
227m2
Lot size:
400
m2
Storeys:
1
Address:
Lot 110 Acadia Court MOUNT BARKER SA 5251
Pricing from
$847,987*

Premium Inclusions

If you have any questions please don’t hesitate to get in touch with Building Consultant, Danny Elder - 0419 723 897 - danny.elder@weeks.com.au

*Please note this home is yet to be constructed, it is not built or under construction.

The pricing includes the below:
• 2700 high ceilings
• 2400mm high entry door
• 2400mm high panel lift garage door
• Supply and install of carpet to bedrooms & WIR
• Supply and install of timber laminate flooring to remainder
• Fully ducted reverse cycle air conditioning

At Weeks Homes our Standard Inclusions go above and beyond. The pricing also includes:  

• Supaloc steel frames 
• Base footing allowance
• Kitchen & bathroom joinery
• Fisher & Paykel stainless steel appliances 
• R2.0 Insulation to external walls 
• R5.0 Insulation to ceilings (including garage) 
• Colorbond roof, gutters, & fascias
• 25-degree roof pitch 
• Instantaneous gas hot water service 
• Panel-lift garage door with remote control 
• Iconic light switches 
• 450mm x 450mm tiles to wet areas 
• Built-in robes  
• Stormwater allowance 
• Temporary fencing during the build 
• Full working drawings 
• Full council approval 
• Energy efficiency report 
• Engineers full construction report 
• Homeowners warranty insurance 

The floorplan represented in this house and land package is for illustration purposes only and should be used as a guide. Additional Mandatory National Construction Code 2022 (NCC 2022) amendments may be required to the plan to comply. Please speak to the Building Consultant for further information.

NEED FINANCE ADVICE?
Think you can't afford to build? - Take advantage of our independent finance group. Our independent advisors can help determine how much you can borrow and how much it will cost per week. A simple phone call or email will help you see how easy it is to own your own home.

Floor Plan

Enlarge floor plan Rotate 90 degrees

Design Options

3
2
2

From: $847,987

Width
11.00m
Length
23.00m
M2
227.00m²
Block size | 400.00m2
Note: Weeks Homes reserves the right to change prices or inclusions without notice. For more detailed home pricing, including details about the standard inclusions for the house and charges for pre-determined optional upgrades, please talk to one of our Consultants. Lot dimensions are approximate. Specific details, pricing and dimensions will be included in your contract.

Location

Lot 110 Acadia Court MOUNT BARKER SA 5251

Enquiry

CAPTCHA

Get in touch and let us help to make your dream home a reality. 

1800 493 357

Discover Different.